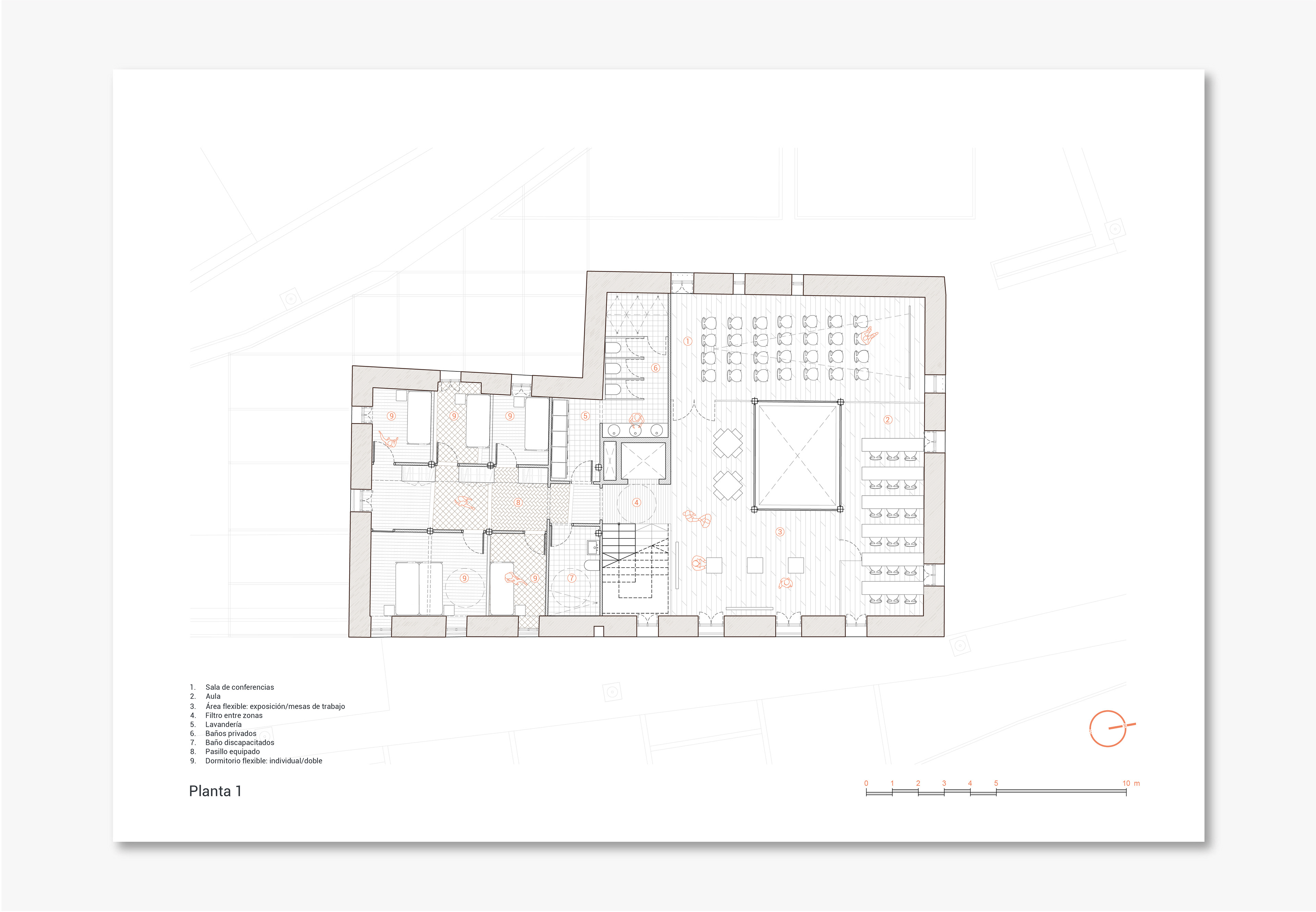
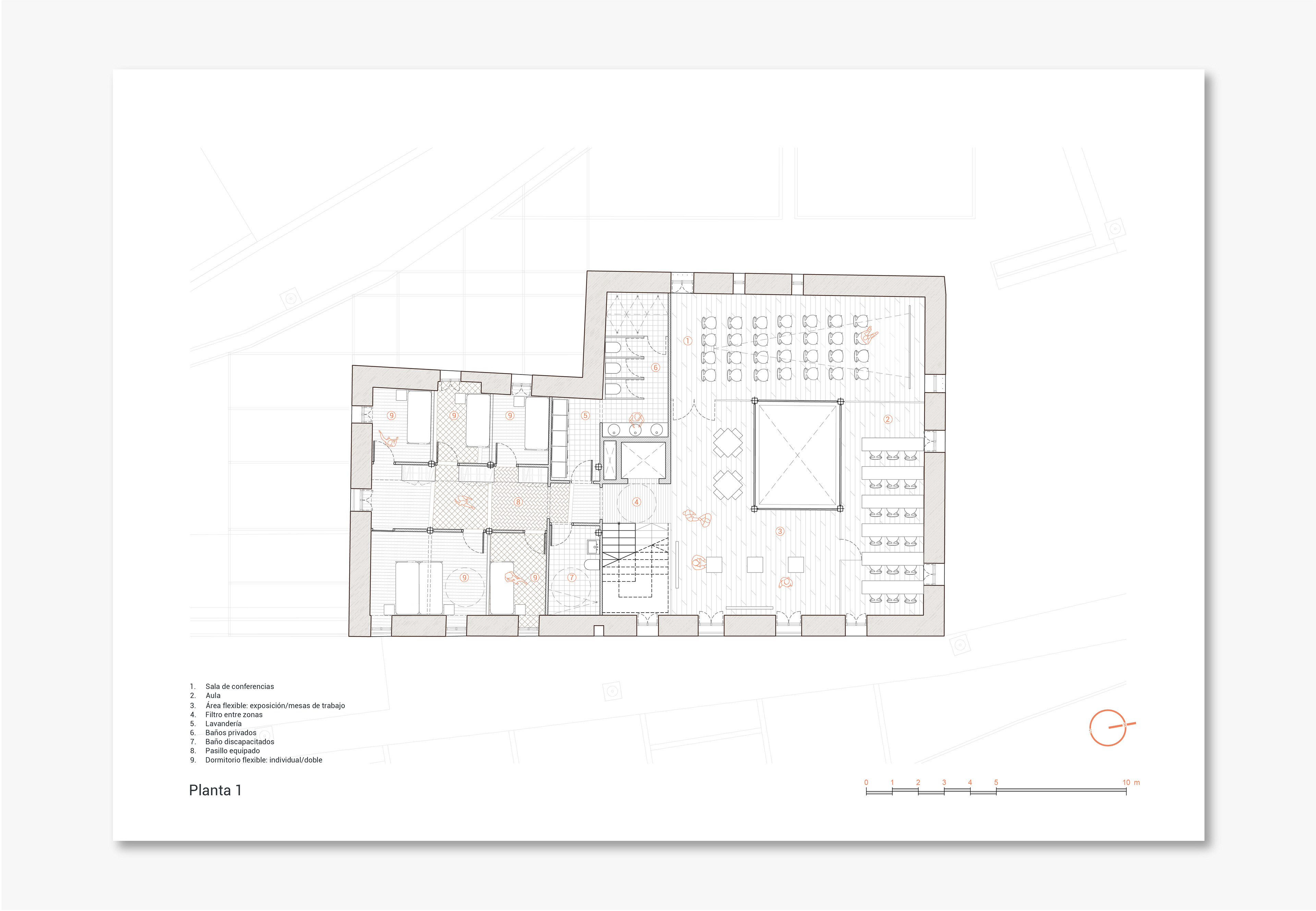
Centro cultural y de investigación
Esta web utiliza cookies propias para su correcto funcionamiento. Al hacer clic en el botón Aceptar, aceptas el uso de estas tecnologías y el procesamiento de tus datos para estos propósitos. Aceptar Rechazar